Photo of facility

Lewes Georgetown Professional Park

Rt 9|Georgetown, DE 19947

Map Image

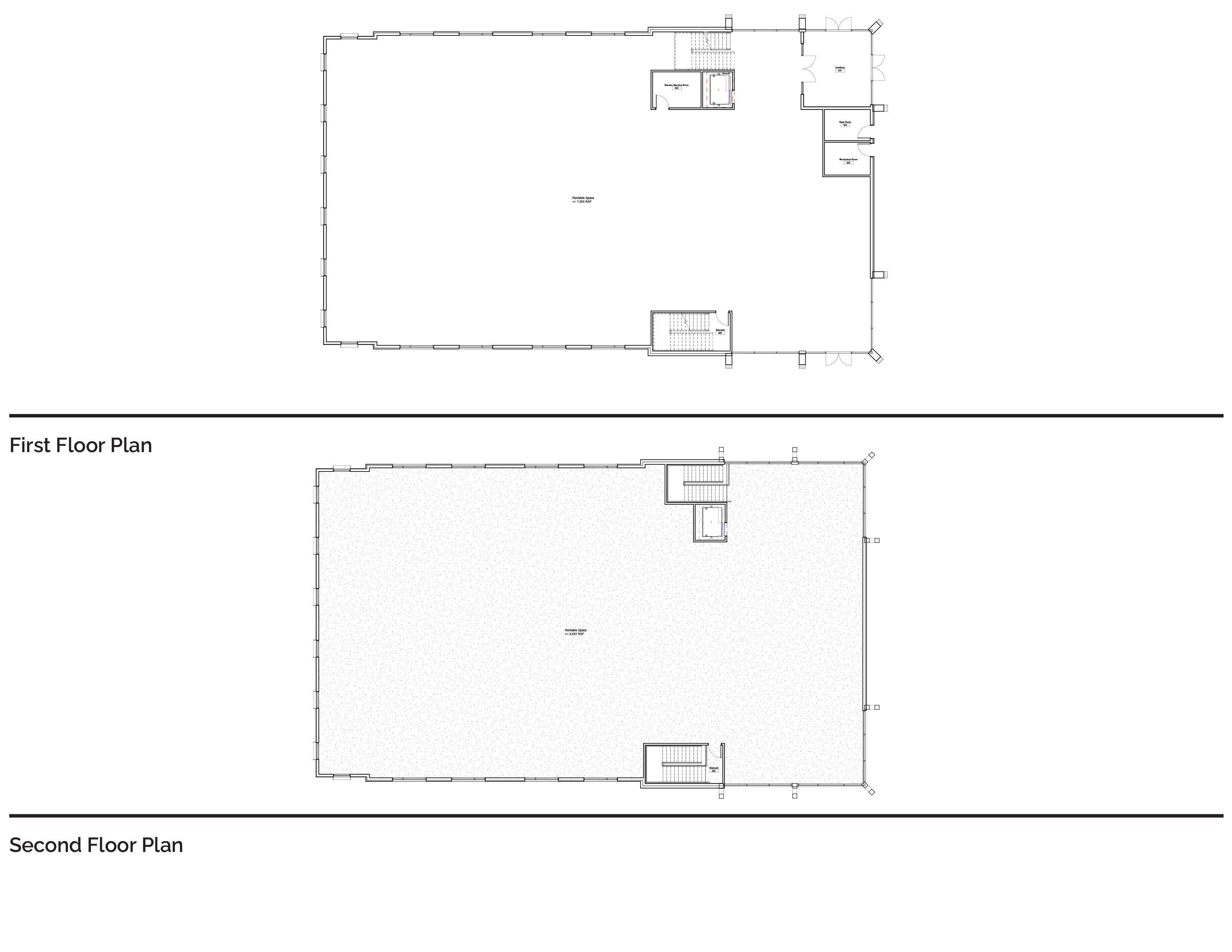
Owner: Georgetown Business Plaza Inc. Location: 26000 Block Lewes Georgetown Hwy, Georgetown, DE Acreage: 22.285 Acres Zoning: AR-1 Square Footage: 31,616 Floors: 2 Story Parking: 161 Spaces

FLOOR PLAN